Casa di corte in vendita

Gatteo, Via Garibaldi
€ 390.000
5 locali 5 locali
333 Mq 333 Mq
2 bagni 2 bagni

Casa di corte in vendita

Gatteo, Via Garibaldi

Descrizione annuncio

GATTEO:

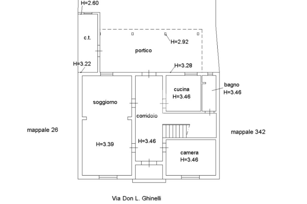
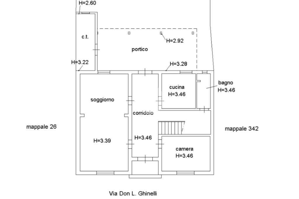
Nel pieno centro di Gatteo proponiamo in vendita una casa di corte di ampie dimensioni, circondata da un grande giardino privato, ideale per chi cerca indipendenza, spazi generosi e tranquillità senza rinunciare alla comodità dei servizi.

L’abitazione si sviluppa su più livelli ed è arricchita da garage privato con cantina adiacente, perfetta come spazio di deposito o area hobby. Sul retro della casa troviamo un suggestivo portico in legno, che accompagna fino al locale adibito a lavanderia, creando un’area esterna coperta ideale per momenti di relax o convivialità.

Al piano terra l’ingresso conduce in un ampio salotto con camino, caldo e accogliente, affiancato da una cucina abitabile, una camera da letto matrimoniale e un bagno finestrato.

Le finiture sono originali dell’epoca di costruzione, offrendo la possibilità di personalizzare gli ambienti secondo il proprio gusto.

Salendo la bellissima e imponente scala in muratura, si accede al reparto notte, composto da due camere matrimoniali di generose dimensioni, una camera singola, uno studio ampio, e un bagno finestrato con vasca.

Completa il piano un ripostiglio finestrato, versatile e trasformabile in piccola serra, seconda lavanderia o spazio multiuso.

Al piano superiore accessibile con scala elettrica retrattile troviamo una spaziosa mansarda, trasformabile in un ulteriore spazio utilizzabile.

Soluzione ideale per famiglie numerose o per chi desidera una casa indipendente con grandi spazi interni ed esterni, in posizione centrale e riservata.

Per ulteriori informazioni potete contattare il numero 0541340912




Mostra tutto

Nelle vicinanze

Trasporto pubblico Trasporto pubblico
Don Ghinelli
Don Ghinelli
150 m
Roma
Roma
290 m
Savignano
Savignano
2,2 Km
Scuole Scuole
Istituto Don Luigi Ghinelli
150 m
Scuola Primaria "De Amicis"
180 m
Scuole
210 m
Scuola Infanzia
2,1 Km
Dante Alighieri
2,3 Km
Farmacia Farmacia
Farmacia San Rocco
250 m
Salute e Benessere insieme
2,0 Km
Farmacia "Magnanelli"
2,4 Km
Parafarmacia San Mauro
2,5 Km
Farmacia
2,6 Km
Ospedali Ospedali
Ospedali
2,4 Km
Supermercati Supermercati
A&O
1,8 Km
Conad
2,1 Km
Supermercati
2,1 Km
Negozi Negozi
Negozi
30 m
Forno Pasticceria "F.lli Camilletti"
2,4 Km
Rosticceria
2,4 Km
Alimentari "Marcello" di Zani Enrico
2,4 Km
Mary Abbigliamento
2,4 Km
Bar Bar
Bar
20 m
Bar Sport
2,1 Km
Gelateria "Pinguino"
2,3 Km
Bar/Pasticceria/Gelateria "Mimosa"
2,3 Km
Sidro Club
2,3 Km
Ristoranti Ristoranti
La vecchia officina
200 m
Arcobaleno
270 m
Ristoranti
560 m
Il Chioschetto
1,8 Km
Autogrill Rubicone Ovest
1,9 Km
Mostra tutto

Caratteristiche

Rif.:
61154689
Piano:
Basso di 2
Totale piani:
2
Box:
1
Camere da letto:
4
Arredamento:
Parziale
Mostra tutto
Prezzo Prezzo
€ 390.000
Rata mutuo Rata mutuo
€ 1.841 / mese
Spese annue Spese annue
€ 0
Proponi il tuo prezzoProponi il tuo prezzo

Classe Energetica

Questo immobile è esente da classe energetica
Riscaldamento:
Autonomo
Tipo impianto:
A radiatori
Tipo alimentazione:
Metano

Ti interessa visionare l'immobile?

Fissa un appuntamento  Fissa un appuntamento

Richiedi informazioni

Clicca su Leggi per aprire l'informativa
* Questi campi sono obbligatori

Calcola il tuo mutuo

Semplice e senza impegno
Anticipo

( % )
Mutuo

( % )

pochi semplici passi

inserisci i tuoi dati
Questionario completato
Grazie per aver richiesto un appuntamento senza impegno con un nostro Consulente del Credito e Assicurativo.

Hai inserito correttamente tutti i dati necessari e a breve riceverai una e-mail con un link da convalidare per inviare i tuoi dati.
Affiliato
Studio Pascoli Srl
Via Della Libertà, 4 47030 San Mauro Pascoli (FC)

Il nostro staff


  • Davide Perazzini
    Affiliato

  • Kevin Carcangiu
    Collaboratore

  • Giorgia De Angeli
    Collaboratrice

  • Michele Epifani
    Collaboratore

  • Massimo Pesaresi
    Affiliato
Via Della Libertà, 4 47030 San Mauro Pascoli (FC)
Zona: San Mauro Mare-San Mauro Pascoli-Gatteo Terra
Mostra su mappa
Orari: Dal Lunedì al Venerdì - 09.00 - 13.00 e 15.00 - 19.30 Sabato 9.00 - 13.00
Affiliato
Studio Pascoli Srl
Via Della Libertà, 4 47030 San Mauro Pascoli (FC)

2025 Tecnocasa Franchising S.p.A. - P. IVA 08365160152 - Via Monte Bianco 60/A 20089 Rozzano (MI). Ogni agenzia ha un proprio titolare ed è autonoma. Privacy policy | Policy utilizzo | Cookie policy